Accéder au contenu principal
Photo: Caroline Dethier

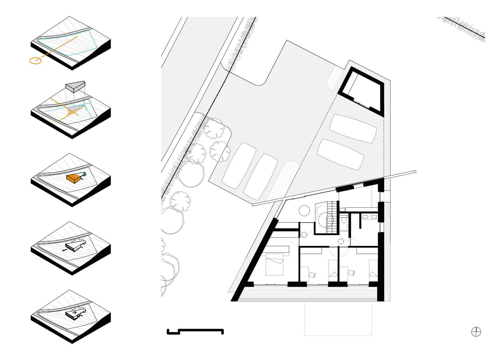
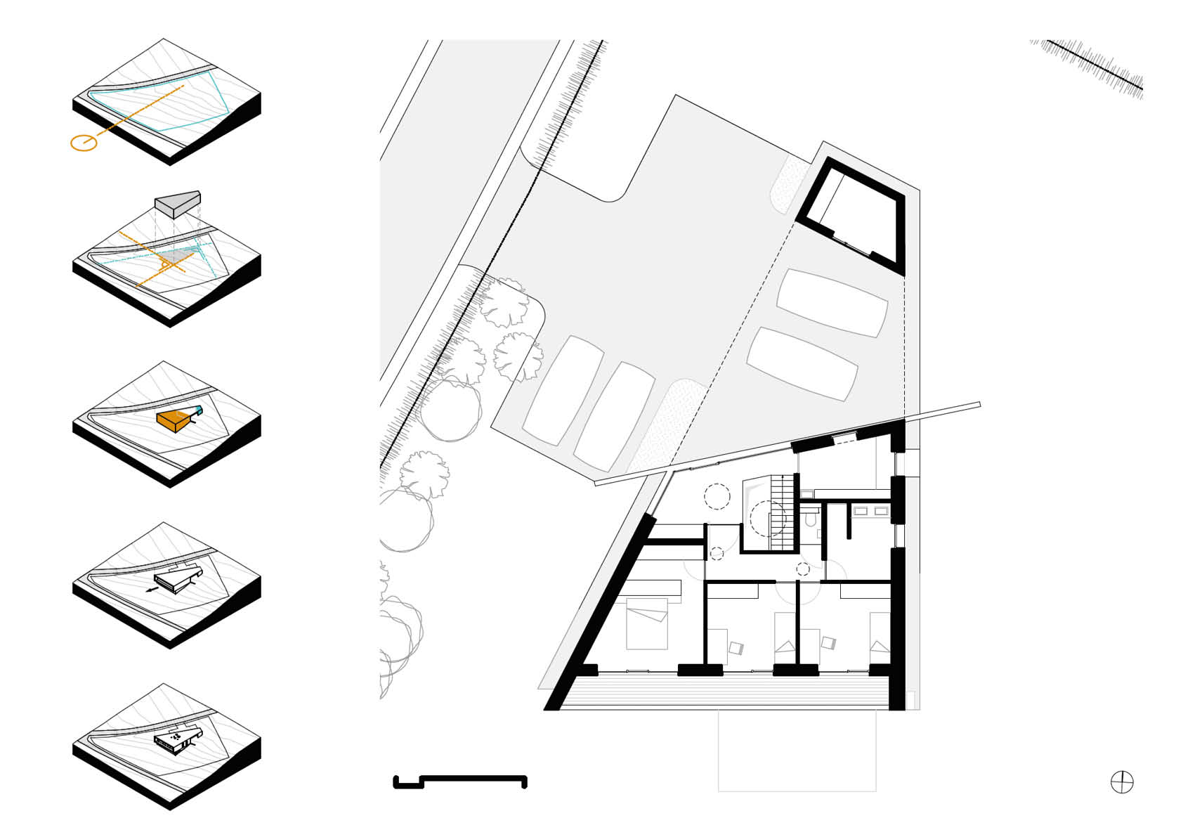
Une maison unifamiliale en style brut

Un pairing béton-acier corten pour maison unifamiliale

Les maîtres d’ouvrage de cette maison, passionnés d’architecture, ont décidé d’allier béton et acier corten, pour des raisons pratiques comme esthétiques. L’élément porteur de la structure est un voile de béton de 6 mètres de haut, coulé sur place et laissé apparent pour un style délibérément brut. Les murs et les plafonds sont conçus en dalles de béton coffrées et la dalle de sol est en béton lissé à l’hélicoptère.

Pour éviter une ambiance trop froide, les maîtres d’ouvrage ont fait installer un bardage en acier Corten sur l’ensemble des façades du niveau 0, pour un total de plus de 138 m². De largeurs différentes, les panneaux apportent également rythme et relief à l’intérieur. Au-delà de son aspect esthétique de la rouille et la patine caractéristiques de l’acier Corten, celui-ci s’avère également être un choix pratique : grâce à ses qualités auto-protectrices, il ne requiert aucun entretien.

  • Privé
    Localisation
  • Privé
    Maître de l'ouvrage
  • Pygma Architecture, Embourg
    Architecte / Concepteur
  • Lemaire Ingénieurs, Grâce-Hollogne
    Bureau d'études (stabilité)
  • Leidgens, Dison
    Constructeur métallique
  • Caroline Dethier
    Photographe