Accéder au contenu principal
Photo: Johnny Umans

Le squelette en acier permet un plan libre

Maison unifamiliale dans la région de la Dendre

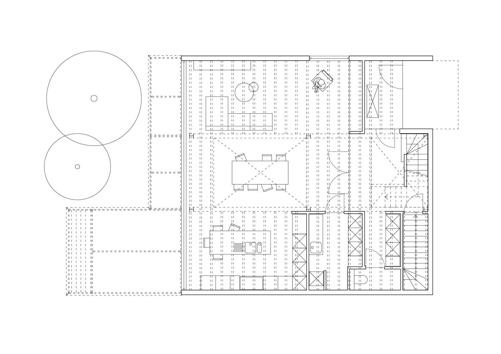
Cette maison unifamiliale nouvellement construite dans la région de la Dendre est constituée d’une structure en acier, revêtue de planchers en bois et de murs en plaques de plâtre clair. Tout autour, une enveloppe extérieure en briques a été installée. Les matériaux utilisés sont restés visibles, ce qui est surprenant. Les murs en briques de l’enveloppe et les poutres en bois des planchers contrastent avec la structure en acier peinte de couleur sombre.

En travaillant avec un plan ouvert et un vide en double hauteur, l’étage et le rez-de-chaussée sont reliés visuellement. Un plan ouvert, organisé par la grille de colonnes en acier, laisse libre cours à l’interprétation. De grandes fenêtres à l’arrière permettent de communiquer avec le grand jardin. Le bois huilé transparent des plafonds contraste avec les balustrades et la structure en acier peinte de couleur sombre pour éviter toute connotation industrielle excessive. Ces balustrades sont constituées de cadres en acier complétés de matériau expansé.

  • Privé
    Localisation
  • Privé
    Maître de l'ouvrage
  • Luchtschip Architectuur, Gentbrugge
    Architecte / Concepteur
  • Vesting, Sint-Amandsberg
    Bureau d'études (stabilité)
  • Bovy Gilles GCV, Appelterre-Eichem
    Entreprise générale
  • Verbeeren Metaalwerken, Roosdaal - STS Engineering, Sint-Laureins
    Constructeur métallique
  • Johnny Umans
    Photographe